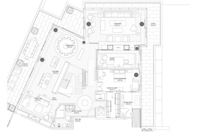
El diseñador de interiores Robert Bailey, ha completado el interior de un ático en el centro de Vancouver, Canadá. Se trata de 6400 metros cuadrados en dos niveles, en los pisos 47 y 48 (además de la cubierta del techo 49º) del edificio de Fairmont en Vancouver, BC, Canadá.
Este proyecto se llevó a cabo en dos fases, una durante la construcción del edificio base y el segundo cuando el conjunto fue entregado a su propietario. La casa iba a ser cómoda, lujosa y con una tranquilidad visual. Los materiales usados para la vivienda son suelos cálidos y neutros, tablón de roble blanqueado, puertas de nogal, piedra y mármol gris oscuro. Hemos diseñado los muebles en una escala de espacios cómodos, con artesanía y materiales de calidad. Los espacios fueron planeados para adaptarse a entretener a grandes grupos o reuniones íntimas. El estilo del apartamento es moderno, con respeto a los valores tradicionales de la comodidad y facilidad de uso.


































0 Comentarios